+34 951 708 422 | [email protected]
  • English
  • Español
  • Menu
    +34 951 708 422 menu
  • English
  • Español
  • Terreno Urbano en venta en Benalmadena Pueblo, Benalmádena
    PDF
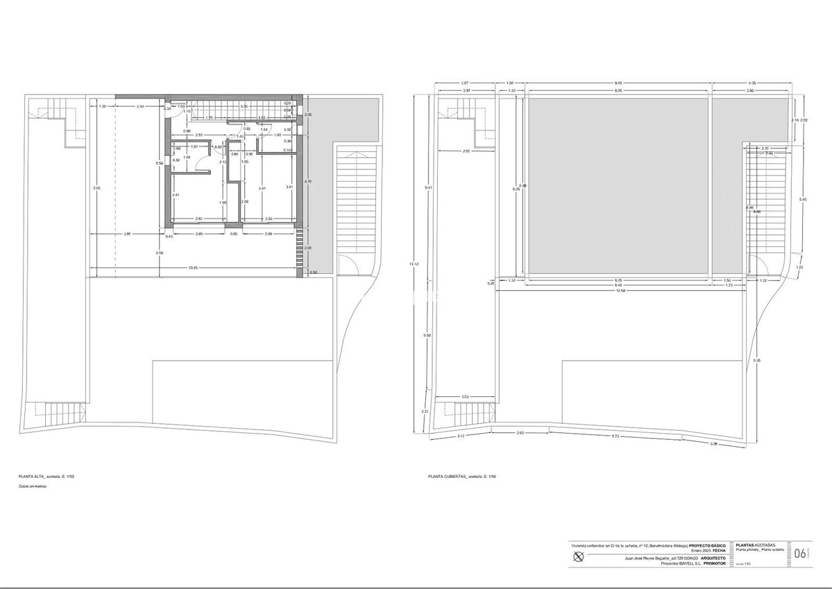
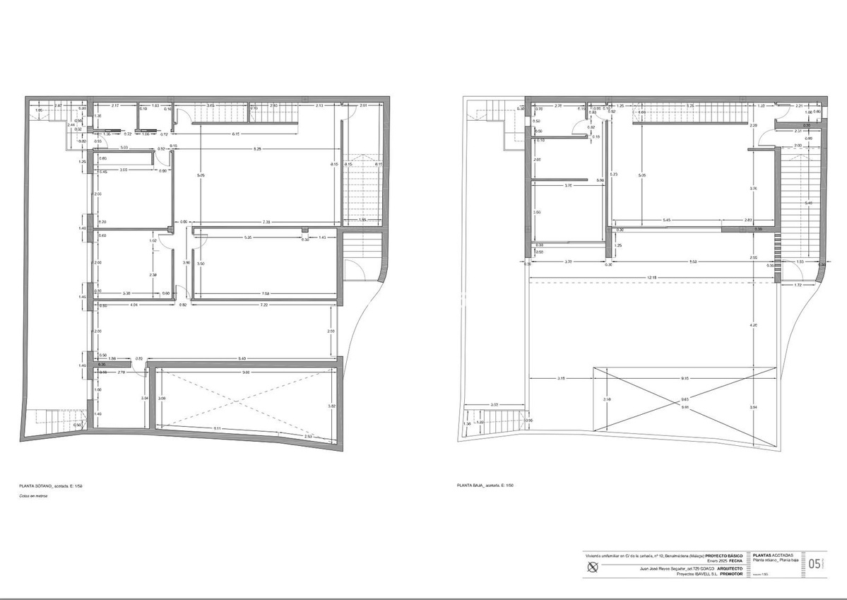
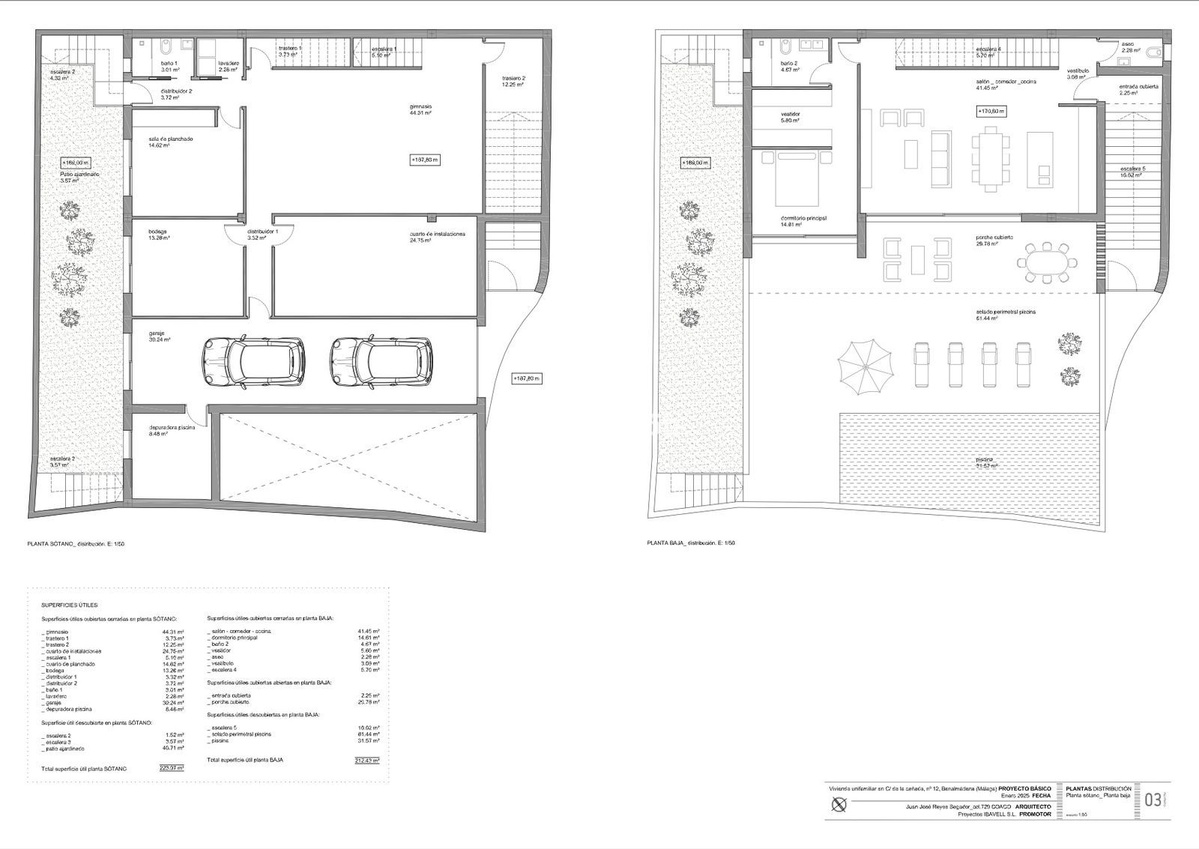
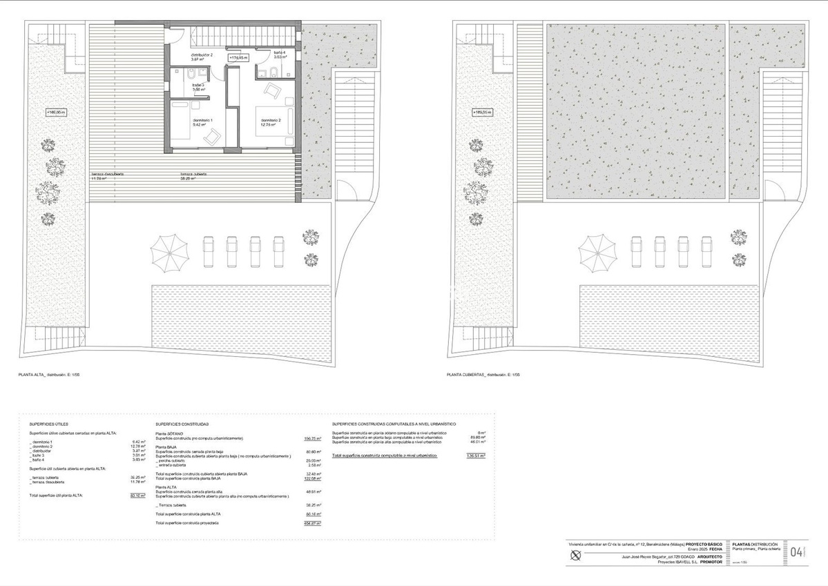
    Parcela edificable con proyecto en Rancho Domingo, Benalmádena Pueblo. Ubicación muy atractiva en una parcela de esquina al final de una calle sin salida cerca del pueblo con todo tipo de servicios. El proyecto que está listo para la licencia de construcción consiste en una villa independiente con piscina privada y garaje. Está desarrollado para tener sótano, planta baja y primer piso, con garaje para dos vehículos y piscina. Se ha orientado de manera que las vistas principales se dirijan a los puntos donde no hay edificaciones, aumentando así la sensación de privacidad. Planta sótano con gimnasio, trasteros, cuarto de instalaciones, cuarto de plancha, bodega, baño 1, lavadero, garaje y patio. Superficie útil total de sótano 223,97 m2. Planta baja con salón, comedor, cocina, dormitorio principal, baño 2, vestidor, aseo, pasillo, entrada cubierta, porche cubierto y piscina. Superficie útil total planta baja 212,43 m2. Superficie construida cerrada en planta baja 89,60 m2. Planta primera con dormitorio 1, dormitorio 2, recibidor, baño 3, baño 4, terraza cubierta y terraza descubierta. Superficie útil total planta primera 83,10 m2. Superficie construida cerrada planta primera 46,91 m2 Superficie útil total proyectada 519,50 m2. Superficie construida total computable a nivel urbanístico 136,51 m2. La edificación proyectada se ubica en un entorno urbano consolidado de la urbanización. Las parcelas de la zona están construidas o en proceso de construcción.
  • Orientación

    Sur

    Oeste

    Sudeste

    Suroeste

  • Vistas

    Jardín

    Vistas Urbanas

    Calle

  • Posición

    Cerca del golf

    Urbanización

    Cerca de las tiendas

    Cerca de la ciudad

    Cerca de las escuelas

    Ciudad

    Aldea

    Pueblo de montaña

  • Estado

    Buen estado de conservación

    Excelente

  • Categoría

    Inversión

    Fuera del plan

    Reventa

    Con permiso de planificación

  •  

    Honorarios de la comunidad: €0 / monthly

    Impuesto de Basura: €0 / annually

    Tarifas de IBI: €0 / annually

    Características

    Referencia
    R4927423
    Precio
    €295,000
    Ubicación
    Benalmadena Pueblo
    Area
    Málaga
    Tipo de Propiedad
    Terreno Urbano
    Dormitorios
    0
    Baños
    0
    Parcela
    290 m2
    Construido
    0 m2
    Terraza
    0 m2

    Más información

    • This field is for validation purposes and should be left unchanged.
    • This field is hidden when viewing the form
    [email protected]