Pareada en venta en Benalmadena Pueblo, BenalmádenaCaracteristicas
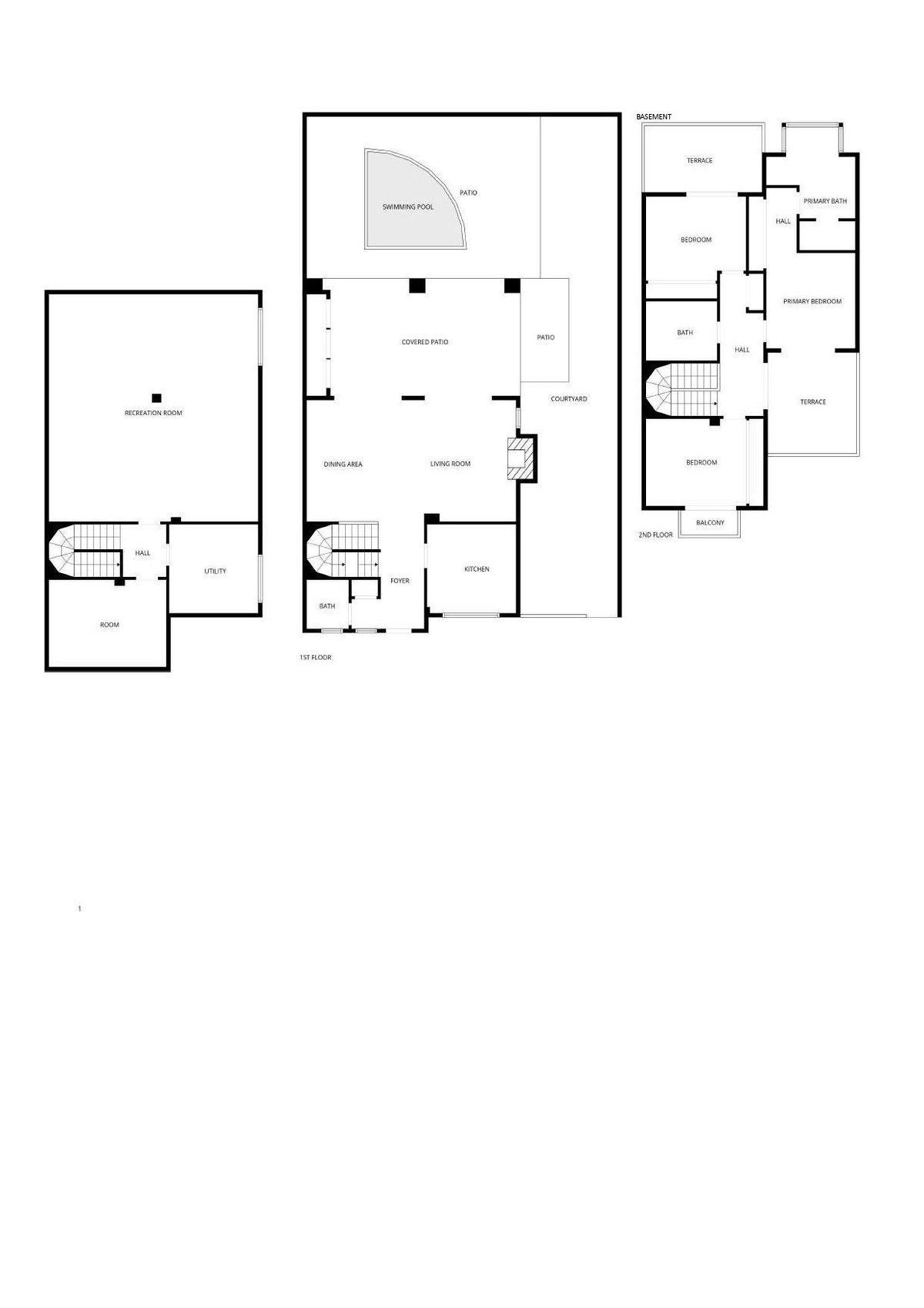
Terraza
Transporte cercano
Terraza
Trastero
Baño privado
Doble acristalamiento
Armarios ajustados
Sala de servicios
Jacuzzi
Barbacoa
Cerca de la iglesia
Sótano
Fibra óptica
Climatización
Aire acondicionado
Hogar
Vistas
Mar
Montaña
Vistas Panorámicas
Jardín
Piscina
Posición
Cerca del golf
Cerca de las tiendas
Cerca de la ciudad
Cerca de las escuelas
Piscina
Piscina Privada
Seguridad
Sistema de alarma
Persianas
Honorarios de la comunidad: €0 / monthly
Impuesto de Basura: €0 / annually
Tarifas de IBI: €0 / annually

Características
Más información

















































